Hôtel particulier francilien

Projet plan
Image principale
Image
modification des façades extérieures et des aménagements intérieurs d’un hôtel particulier

Typologie

Type de projet

Client

Joseph Karam

Phase

Synthèse

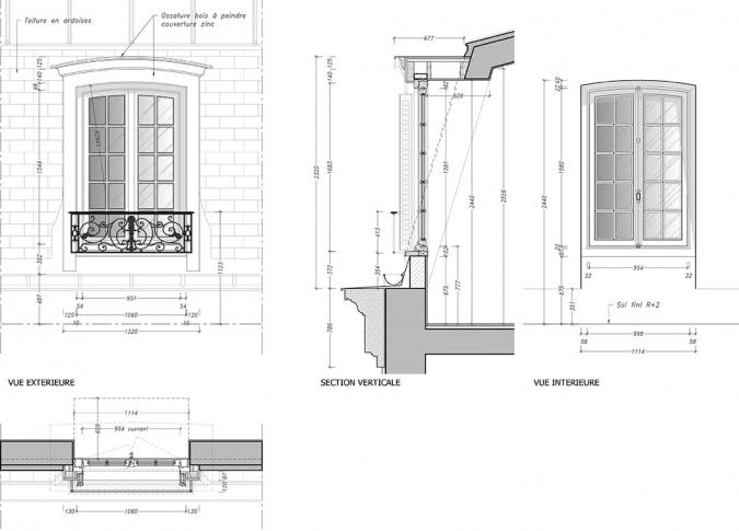
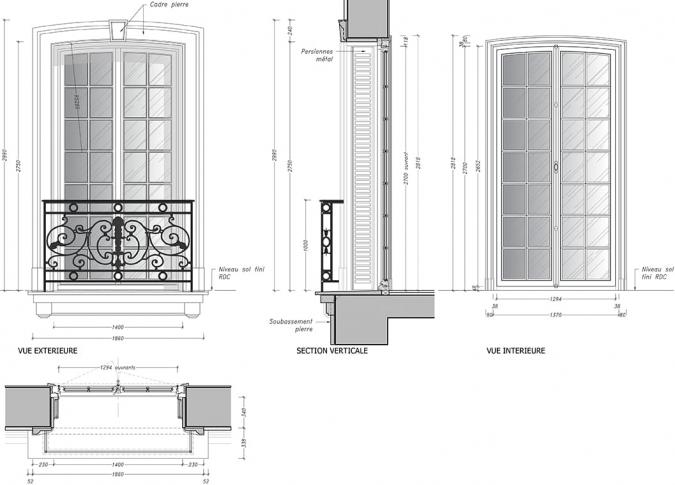
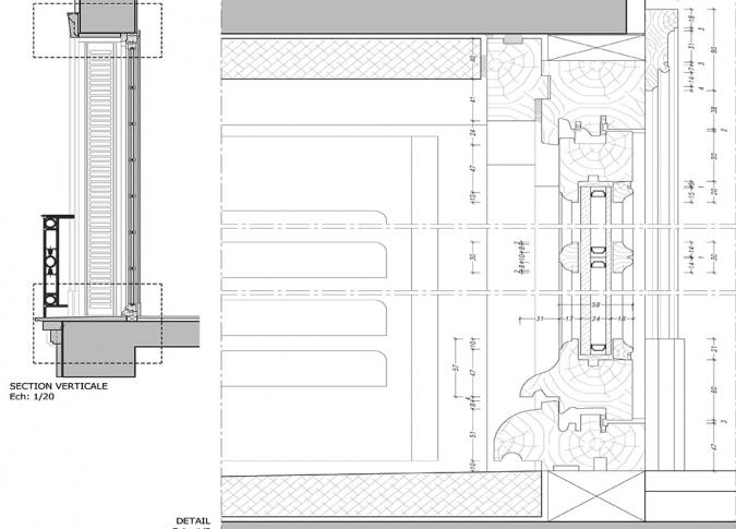
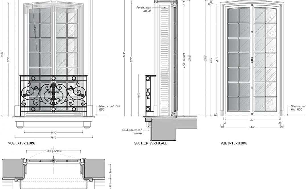
Réalisation d’un dossier de consultation des entreprises sur la modification des façades extérieures et des aménagements intérieurs d’un hôtel particulier situé en Ile-de-France. Notre choix c’est porté sur la présentation d’un extrait du book des menuiseries extérieures. Nous avons suivant les directives de l’architecte, redessiner toutes les menuiseries en tenant compte des nouvelles normes sur l’isolation thermique tout en gardant l’aspect classique des fenêtres à petits bois. Nous avons développé également les croquis et premières études de la porte d’entrée et de sa grille en fer forgé

Paragraphes plan

Plans généraux

Plan
Image
modification des façades extérieures et des aménagements intérieurs d’un hôtel particulier
Légende
modification des façades extérieures et des aménagements intérieurs d’un hôtel particulier situé en Ile-de-France
Plan
Image
modification des façades extérieures et des aménagements intérieurs d’un hôtel particulier
Légende
modification des façades extérieures et des aménagements intérieurs d’un hôtel particulier situé en Ile-de-France
Plan
Image
modification des façades extérieures et des aménagements intérieurs d’un hôtel particulier situé en Ile-de-France
Légende
modification des façades extérieures et des aménagements intérieurs d’un hôtel particulier situé en Ile-de-France
Plan
Image
modification des façades extérieures et des aménagements intérieurs d’un hôtel particulier
Légende
modification des façades extérieures et des aménagements intérieurs d’un hôtel particulier situé en Ile-de-France
Plan
Image
modification des façades extérieures et des aménagements intérieurs d’un hôtel particulier
Légende
modification des façades extérieures et des aménagements intérieurs d’un hôtel particulier situé en Ile-de-France
Plan
Image
modification des façades extérieures et des aménagements intérieurs d’un hôtel particulier
Légende
modification des façades extérieures et des aménagements intérieurs d’un hôtel particulier situé en Ile-de-France
Plan
Image
modification des façades extérieures et des aménagements intérieurs d’un hôtel particulier
Légende
modification des façades extérieures et des aménagements intérieurs d’un hôtel particulier situé en Ile-de-France
Plan
Image
modification des façades extérieures et des aménagements intérieurs d’un hôtel particulier
Légende
modification des façades extérieures et des aménagements intérieurs d’un hôtel particulier situé en Ile-de-France
Plan
Image
modification des façades extérieures et des aménagements intérieurs d’un hôtel particulier situé
Légende
modification des façades extérieures et des aménagements intérieurs d’un hôtel particulier situé en Ile-de-France

Nos derniers projets !