Hôtel Florida

Projet plan
Image principale
Image
Florida

Typologie

Type de projet

Client

Liautard and the queen

Phase

APD / DCE

dossier de consultation des entreprises

Mise en plan en phase ADP puis DCE des plans détages de l'hôtel Florida.

Plans généraux de 5 étages, pièce par pièce de chaque chambre (plans, élévations, détails)

Paragraphes plan

Plan des circulation

Plan
Image
Plan des circulations R+4
Légende
Plan des circulations R+4
Plan
Image
Plan de sols des circulations R+4
Légende
Plan de sols des circulations R+4
Plan
Image
Plan de plafond des circulations R+4
Légende
Plan de plafond des circulations R+4
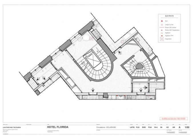
Plan
Image
Plan éclairage des circulations R+4
Légende
Plan éclairage des circulations R+4

Pièce par pièce - Chambre

Plan
Image
Chambre SOL
Légende
Plan de sol
Plan
Image
Plan de plafond
Légende
Plan de plafond
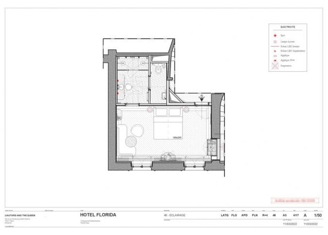
Plan
Image
Plan d'éclairage
Légende
Plan d'éclairage
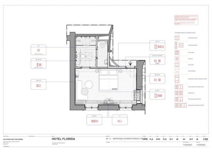
Plan
Image
Plan électricité
Légende
électricité

Elévations chambre

Plan
Image
Elévation AA
Légende
Elévation AA 1/2
Plan
Image
Elévation AA-2
Légende
Elévation AA 2/2
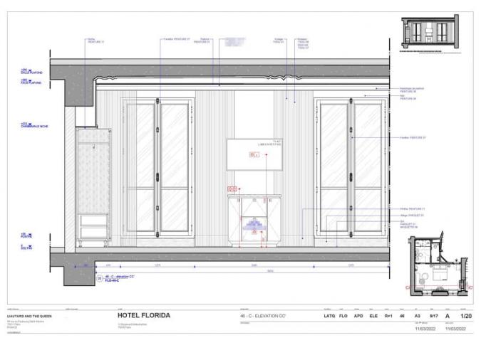
Plan
Image
Elévation CC
Légende
Elévation CC
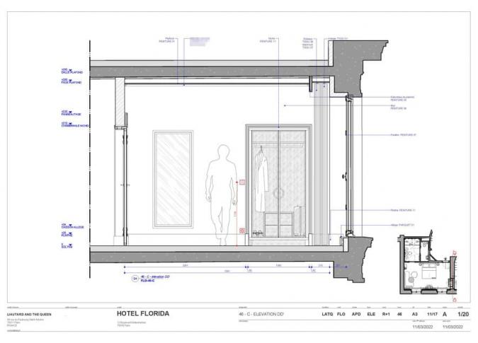
Plan
Image
Elévation DD
Légende
Elévation DD

Carnet de détails

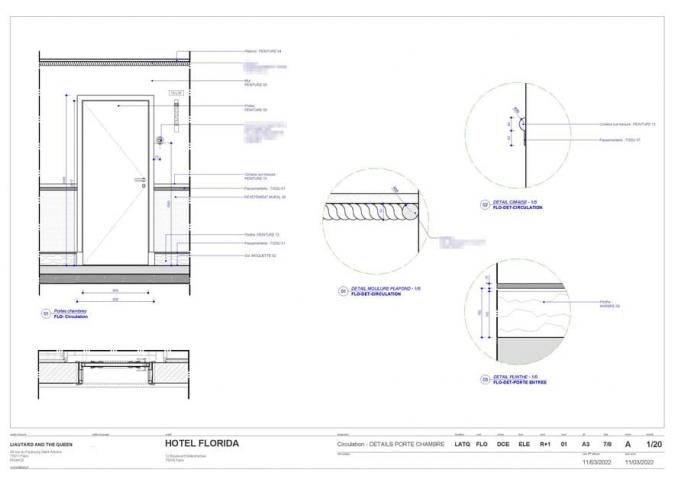
Plan
Image
Détail porte chambre
Légende
Détail porte chambre
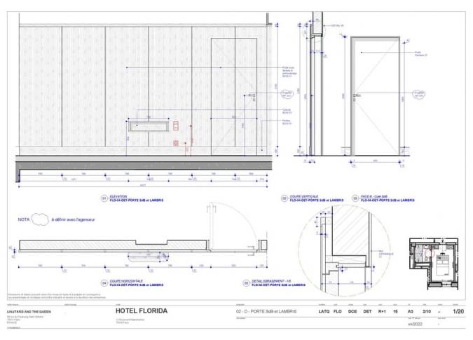
Plan
Image
Détail porte
Légende
Détail porte
Plan
Image
Détail lambris
Légende
Détail lambris
Plan
Image
Détail fenêtre
Légende
Détail fenêtre
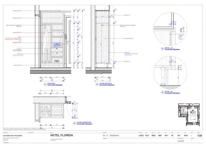
Plan
Image
Détail dressing
Légende
Détail dressing
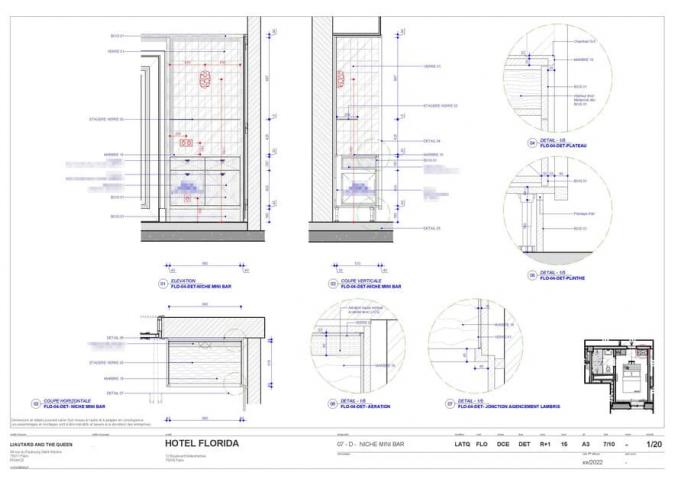
Plan
Image
Détail mini-bar
Légende
Détail mini-bar

Photos

Plan
Image
Florida - photo circulation
Légende
Florida - photo circulation
Plan
Image
Florida - photo salle de bain
Légende
Florida - photo salle de bain
Plan
Image
Florida - photo chambre (1)
Légende
Florida - photo chambre
Plan
Image
Florida - photo chambre (2)
Légende
Florida - photo chambre
Plan
Image
Florida - photo chambre (3)
Légende
Florida - photo chambre (3)

Nos derniers projets !