Hôtel Costes

Projet plan
Image principale
Image
plans d’exécution des boiseries classiques de la nouvelle extension de l’hôtel Costes

Typologie

Type de projet

Client

SEMA

Phase

Synthèse

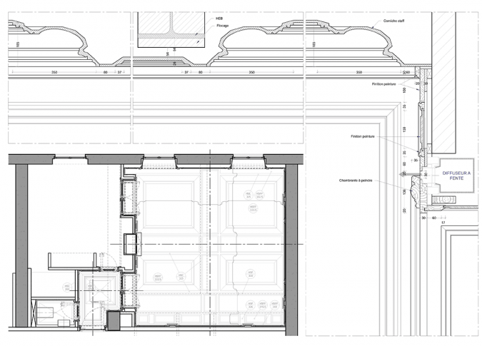
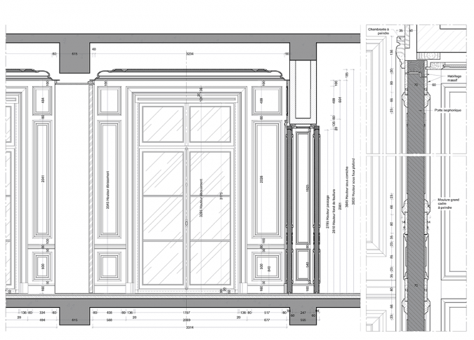
Après le relevé sur le chantier des onze chambres et cinq suites, nous avons réalisé pour le compte de l’atelier d’ébénisterie, les plans d’exécution des boiseries classiques de la nouvelle extension de l’hôtel Costes sur la rue de Castiglione à Paris. Nous avons pris en charge la mise en plan de tous les plafonds staff, de l’intégration des soufflages et reprises ainsi que le positionnement et l’étude de toutes les trappes d’accès pour les ventilo-convecteurs.

Paragraphes plan

Plans généraux

Plan
Image
plans d’exécution des boiseries classiques de la nouvelle extension de l’hôtel Costes
Légende
plans d’exécution des boiseries classiques de la nouvelle extension de l’hôtel Costes sur la rue de Castiglione à Paris
Plan
Image
plans d’exécution des boiseries classiques de la nouvelle extension de l’hôtel Costes
Légende
plans d’exécution des boiseries classiques de la nouvelle extension de l’hôtel Costes sur la rue de Castiglione à Paris
Plan
Image
plans d’exécution des boiseries classiques de la nouvelle extension de l’hôtel Costes
Légende
plans d’exécution des boiseries classiques de la nouvelle extension de l’hôtel Costes sur la rue de Castiglione à Paris
Plan
Image
plans d’exécution des boiseries classiques de la nouvelle extension de l’hôtel Costes
Légende
plans d’exécution des boiseries classiques de la nouvelle extension de l’hôtel Costes sur la rue de Castiglione à Paris

Nos derniers projets !