Aménagement d’un appartement parisien

Projet plan
Image principale
Image
Plan général

Typologie

Type de projet

Client

Egal - bâtiment

Phase

DCE / Synthèse

Pour ce projet d’appartement parisien, Skals a assuré la réalisation complète du DCE (Dossier de Consultation des Entreprises), en fournissant des plans techniques précis et adaptés aux exigences du chantier.

Une fois la phase de consultation terminée, nous avons accompagné l’entreprise générale EGAL BAT tout au long de la réalisation, en assurant :

  • La mise à jour des plans selon les besoins spécifiques des différents corps d’état (électricité, plomberie, menuiserie, etc.).
  • L’adaptation des détails techniques pour répondre aux contraintes du chantier.
  • Le respect de l’esthétique définie entre l’architecte d’intérieur et les clients, afin de garantir une cohérence parfaite entre le projet initial et sa réalisation finale.

Ce suivi rigoureux a permis de fluidifier la coordination entre les intervenants et d’assurer une livraison conforme aux attentes des clients.

Paragraphes plan

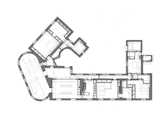
Plans généraux

Plan
Image
Plan général
Légende
Plan général
Plan
Image
Plan maçonnerie
Légende
Plan maçonnerie
Plan
Image
Plan agencement
Légende
Plan agencement
Plan
Image
Plan plafond
Légende
Plan plafond

Exemple d'une pièce : salle de bain

Plan
Image
Salle de bain - plan général
Légende
Salle de bain - plan général
Plan
Image
Salle de bain - plan de sol
Légende
Salle de bain - plan de sol
Plan
Image
Salle de bain - plan elec
Légende
Salle de bain - plan électricité
Plan
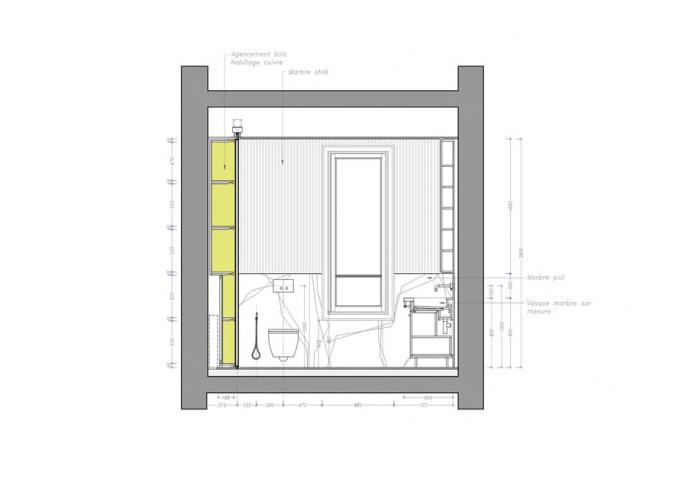
Image
Elévation 01
Légende
Elévation 01
Plan
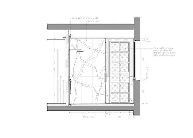
Image
Elévation 02
Légende
Elévation 02
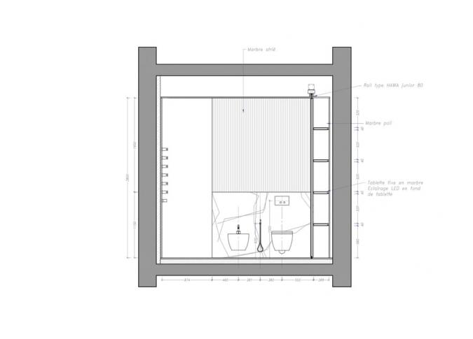
Plan
Image
Elévation 03
Légende
Elévation 03
Plan
Image
Elévation 04
Légende
Elévation 04
Plan
Image
Elévation 05
Légende
Elévation 05

Détail de la salle de bain

Plan
Image
Salle de bain - détails agencement 01
Légende
Salle de bain - détails agencement 01
Plan
Image
Salle de bain - détails meuble vasque
Légende
Détails meuble vasque 01
Plan
Image
Détails meuble vasque 02
Légende
Détails meuble vasque 02

Nos derniers projets !