Projets en cours, projets à venir : l’actualité Skals
Une fois n’est pas coutume, nous avons choisi de consacrer cet article à l’actualité des projets en cours et à venir chez Skals. Comme vous le savez, nous sommes particulièrement attachés à la confidentialité des projets sur lesquels nous travaillons. Cette discrétion fait partie intégrante de notre manière de collaborer et de la relation de confiance que nous entretenons avec chacun de nos clients.
Sans tout dévoiler, nous avons néanmoins souhaité partager quelques éléments sur l’année 2025 qui vient de s’achever, ainsi que sur ce qui se dessine déjà pour 2026. Un aperçu de notre activité, de la diversité des projets traités, et de ce qui nous attend pour les mois à venir.
Ce début d’année 2026 s’inscrit pleinement dans la continuité de 2025, avec une activité soutenue et une grande diversité de projets en cours chez Skals. Des projets très différents les uns des autres, mais qui ont tous en commun une même exigence de qualité, de précision et un haut niveau de détail, qui guident notre manière de concevoir et de travailler.

L’année 2025 a été particulièrement riche, marquée par des projets de restaurants, d’hôtels, d’appartements privés, mais aussi par des appartements témoins et d’autres espaces pour une opération d’envergure. Nous avons également mis en plan plusieurs projets à l’étranger, ainsi que de nombreux détails d’agencement sur mesure.
Le mois de janvier 2026, qui vient de s’achever, est à l’image de cette continuité. Nous avons travaillé sur des projets variés : agencement de boutiques et d’espaces retail, aménagement de bureaux, mais aussi un petit bar en Italie, à l’atmosphère intimiste et soignée, dans un esprit feutré, entre club anglais et ambiance classique chic. En parallèle, nous poursuivons le travail engagé en 2025 sur un grand projet hôtelier qui continuera de nous mobiliser sur une bonne partie de l’année.
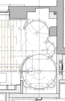
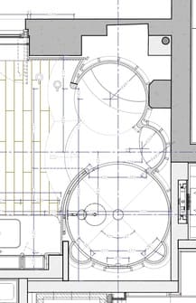
Le mois de janvier a également été l’occasion de visiter un chantier livré à la fin de l’année 2025 : un appartement parisien de grande taille donnant sur la Seine, dont chaque détail témoigne d’un travail d’une grande finesse. L’ambiance générale est résolument contemporaine ; ici, les détails ne sautent pas aux yeux, mais c’est justement cette apparente simplicité qui révèle la complexité de la mise en œuvre et donne toute son élégance à cet intérieur.
Les matériaux jouent un rôle central dans la perception de l’espace : pierres naturelles, ébrasements en marbre, sols en marbre aux joints d’une extrême précision, boiseries et agencements en panneaux marquetés. La baignoire et certaines douches ont été taillées dans la masse, intégrant des éléments translucides rétroéclairés. L’ensemble des agencements a été réalisé sur mesure, jusqu’à une cuisine toute intégrée, où les murs en bois dissimulent l’ensemble de l’électroménager et des rangements.
Tout l’appartement a fait l’objet d’une rénovation complète, incluant des renforts structurels permettant de supporter le poids des cheminées et de la baignoire. Visiter ce projet alors que le mobilier était en cours de livraison a été un véritable plaisir. Même si les plans et les études permettaient déjà d’imaginer précisément le résultat final, voir un projet réalisé est toujours un moment particulièrement satisfaisant. Nous saluons au passage la qualité du travail de l’entreprise générale Egal Bâtiment, que nous avons accompagnée depuis le dossier APS jusqu’à la mise à jour des plans, ainsi que dans la recherche de solutions techniques tout au long du chantier.
Ces derniers jours ont été marquées par de nouvelles rencontres et le lancement de projets de rénovation d’appartements à Paris, mais aussi par des projets de retail et des opérations menées à l’étranger. Un nouveau projet hôtelier viendra également s’ajouter à notre planning, avec un démarrage prévu courant du mois de mars.

Notre planning se remplit bien, mais nous restons toujours ravis d’échanger autour de nouveaux projets. Chaque mission est avant tout un travail collaboratif, mené main dans la main avec nos clients, dans un dialogue constant, depuis les premières intentions jusqu’à la remise des dossiers complets de plans.
Nous remercions l’ensemble de nos clients pour leur confiance et leur fidélité, et nous nous réjouissons de poursuivre, en 2026, cette aventure faite de rencontres, de savoir-faire partagés et de projets soigneusement conçus.