Les cotes : ce qui transforme un dessin en projet
Souvent les cotes peuvent être considéré comme un simple détail technique. Pourtant, elles jouent un rôle essentiel. Elles relient le dessin à la réalité, organisent la lecture du plan et permettent au projet de passer du papier au chantier. Derrière ces chiffres et ces lignes se cache un outil qu’il faut savoir comprendre et maîtriser.
Un plan sans cote n’est plus un plan
Un plan sans échelle et sans cotes n’est plus vraiment un plan.
C’est un dessin.
On pourrait même pousser le jeu de mots : sans cotes, le plan perd son dessein. Car la cote est ce qui relie la représentation à la réalité. Elle transforme une image en document mesurable, utilisable et constructible.
Dans les plans d’architecture intérieure et d’agencement qui nous intéressent, la cotation n’est donc jamais un simple détail graphique. Elle participe directement à la compréhension du projet et à sa mise en œuvre.
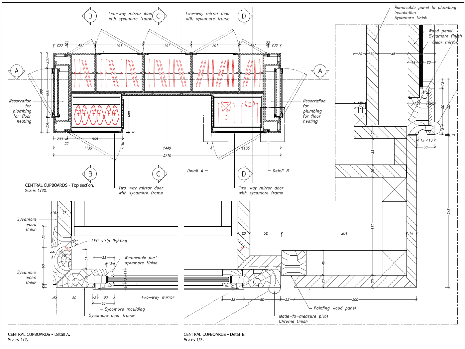
La cotation, un langage graphique
Au premier regard, une cote semble très simple : une ligne, deux extrémités et un chiffre. Pourtant, lorsqu’on observe différents dossiers de plans, on remarque rapidement que la manière de coter varie d’un logiciel à l’autre, mais aussi d’une personne à l’autre.
Certains utilisent des flèches, d’autres des traits obliques ou des points. La taille du texte, l’épaisseur des lignes ou la distance par rapport au dessin peuvent aussi changer.
Pris séparément, ces choix semblent mineurs. Mais ensemble, ils construisent une identité graphique souvent mise en avant et revendiquée comme une signature. La cotation participe ainsi à l’identité d’une agence ou d’un bureau d’études. Avec un peu d’habitude, il est parfois possible de reconnaître l’origine d’un plan simplement en observant la façon dont les cotes sont organisées.
Placer les cotes sans nuire au dessin
La lisibilité reste la règle principale. Une cote doit informer sans gêner la lecture du plan.
Dans les plans d’agencement, les cotes doivent s’organiser autour du dessin de manière claire et hiérarchisée. Les grandes dimensions, les longueurs totales, sont généralement placées à l’extérieur du plan, tandis que les cotes plus détaillées se rapprochent des éléments qu’elles décrivent.
L’objectif est simple : permettre de comprendre rapidement les dimensions sans perturber la lecture.
La cotation demande donc de la rigueur. Sur un dossier complet, la cohérence entre les plans est essentielle et l’organisation générale des dimensions y participe grandement.
Ces détails peuvent sembler discrets, mais ils participent à la qualité globale d’un dossier. Une cotation claire et régulière facilite le travail de tous ceux qui utilisent les plans, des concepteurs aux entreprises.
Coter depuis un axe
Il est également fréquent de coter certaines dimensions à partir d’un axe ou d’un fil plutôt qu’à partir d’un mur ou d’un élément fini.
Cette méthode permet de se référer à une géométrie stable et commune, notamment lorsque plusieurs intervenants travaillent sur le projet.
Les axes jouent d’ailleurs un rôle important dans l’organisation d’un projet. Nous y reviendrons plus en détail dans un prochain article.
Les cotes à chaque étape du projet
La cotation accompagne le projet tout au long de son développement, mais son rôle évolue selon les phases.
En APS ou en APD, les cotes permettent avant tout de comprendre l’espace. Elles aident à apprécier les proportions et à vérifier les circulations.
Dans un DCE, elles servent aux entreprises pour réaliser leurs métrés et estimer les quantités de matériaux nécessaires.
Enfin, dans les plans de réalisation, les cotes deviennent un véritable guide pour la construction. Elles permettent de positionner précisément les éléments et d’assurer la cohérence de l’ouvrage.
Pour cette raison, les cartouches rappellent souvent que les entreprises doivent vérifier leurs cotes avant exécution. La précision du dessin est essentielle, mais la vérification sur site reste toujours indispensable. Les cotes sont donc aussi un indicateur de responsabilité.

La cotation chez Skals
Chez Skals, la cotation fait partie intégrante de notre travail de mise en plan.
Nous nous adaptons bien sûr aux habitudes et aux chartes AutoCAD de nos clients. Chaque structure possède ses conventions graphiques et ses méthodes de travail.
Mais nous y apportons notre savoir-faire. Avec les années d’expérience, nous avons développé une méthodologie précise pour organiser les cotes et garantir la lisibilité des plans.
Sur AutoCAD, cela passe notamment par la maîtrise des styles de cotes et des cotes annotatives, qui permettent d’adapter correctement les dimensions aux différentes échelles de dessin. AutoCAD offre de nombreuses possibilités et se révèle particulièrement puissant pour gérer la cotation de manière rigoureuse.
Dans la mise en page des plans, nous veillons également à organiser les cotes de manière claire, en nous basant sur les règles normatives générales du dessin technique et les pratiques professionnelles propres à l’architecture intérieure et à l’agencement.
Ces choix peuvent sembler discrets, mais ils participent à produire des plans clairs, structurés et faciles à utiliser. Car au final, une bonne cotation ne se remarque presque pas.
Elle fonctionne simplement.